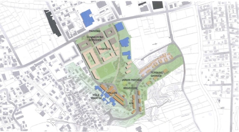
Orientations d'aménagement que prône la Ville sur le site de l'ancien CHPF, pour accompagner son projet de résorption de l'habitat insalubre des quartier Aivi, Garnier et Vallon, sur les hauteurs de Mama'o.
La ville de Papeete rêve d’agir en synergie avec le Pays et l’Etat pour en finir avec le « bidonville » des hauteurs de Mama’o. Le vieux projet de résorption de l’habitat insalubre des quartiers Aivi, Garnier et Vallon, sur les hauteurs de Mama'o, pourrait finalement aboutir grâce à une dynamique vertueuse engendrée par un aménagement urbain sur le site de l’ancien hôpital territorial.
Encore faudra-t-il parvenir à accorder la volonté et les moyens du Pays, sur fond de contrat de Projets 2008-2013, aux intérêts de la municipalité, le tout sur un maillage foncier des plus confus où cohabitent la Ville, le Pays et le privé.
Le grand-œuvre n’est pas chose facile : « Ce sera certainement l’un des grands enjeux du prochain gouvernement », avançait dernièrement Michel Buillard, le maire de Papeete.
Il s’agit d’un peu plus de 20 hectares à la périphérie du centre ville : le domaine de l’ancien centre hospitalier territorial de Mama’o (CHPF) en occupe la moitié ; le reste est un entrelacs de petits quartiers étalés sur les hauteurs, de manière désordonnée et dans des conditions d’hygiène et d’inconfort urbain qui préoccupent sérieusement la Ville depuis le milieu des années 90.
Plusieurs projets d’aménagements visant la résorption de l’habitat insalubre (RHI) se sont succédés sans résultat jusqu’à l’échec de la procédure de Zone d’aménagement concertée (ZAC) en 2003.
Les quartiers Aivi, Vallon et Garnier, sur les hauteurs de Mama’o, accueillent aujourd’hui 511 personnes, 158 cellules familiales et 61 logements dans des conditions indignes qui demeurent inchangées. Le tout dans une zone urbaine qui compte pas loin de 2.000 habitants.
Un lieu populaire où les gens pourraient se retrouver
Le CHPF a été déplacé vers Taaone en octobre 2010, ouvrant la voie à un espoir de concrétisation du projet de RHI. « En 2010, nous avons fait au Pays une proposition de réutilisation de l’espace occupé par l’ancien centre hospitalier », note Emmanuelle Thénot, urbaniste à la ville de Papeete, dossier de synthèse du projet en main, avant d'en décrire les grandes orientations, « L’idée était que l’on puisse, sur le foncier du Pays (emprise foncière de l'ancien hôpital, ndlr), bâtir en façade une première frange urbaine plutôt commerciale, avec des immeubles assez hauts, avec des activités de bureau. Derrière on peut imaginer des activités administratives, et puis on tenait à ce qu’il y ait un grand espace de loisir qui soit implanté dans le quartier. L’EAD (Etablissement public d'aménagement et de développement, ndlr) réfléchissait de son côté sur des programmations et on se rejoignait là-dessus. (…) Nous sommes en pleine ville : il y a un enjeu capital pour Papeete. Cette friche urbaine a vraiment un gros potentiel. En matière de programmation, une frange à vocation sanitaire, avec l’école d’infirmière -- et pourquoi pas insister sur cette vocation ? --, une offre d’habitat intermédiaire, une frange mixte de commerces et bureaux en bordure d’avenue Clémenceau ; et sur le fond une zone de sports, de loisirs et d’espaces verts qui réaliserait un lien urbain entre les quartiers hauts et les quartiers bas. L’idée également de pouvoir pénétrer dans ce quartier de façon agréable avec une grande promenade plantée d’espaces verts jusqu’à l’ancienne école Tamatini, qui deviendrait alors un pôle d’équipement de quartier. (...) Ce que l’on souhaiterait, c’est créer à Mama’o un grand lieu populaire où les gens pourraient se retrouver. »
Un projet d’aménagement de quartier qui, s’il se réalise, serait une première en Polynésie, où les outils réglementaires manquent singulièrement, à commencer par celui permettant le relogement social d'office des personnes déplacées au cours d’une opération de RHI. A Mama’o il y en aurait au bas mot un demi millier.
Encore faudra-t-il parvenir à accorder la volonté et les moyens du Pays, sur fond de contrat de Projets 2008-2013, aux intérêts de la municipalité, le tout sur un maillage foncier des plus confus où cohabitent la Ville, le Pays et le privé.
Le grand-œuvre n’est pas chose facile : « Ce sera certainement l’un des grands enjeux du prochain gouvernement », avançait dernièrement Michel Buillard, le maire de Papeete.
Il s’agit d’un peu plus de 20 hectares à la périphérie du centre ville : le domaine de l’ancien centre hospitalier territorial de Mama’o (CHPF) en occupe la moitié ; le reste est un entrelacs de petits quartiers étalés sur les hauteurs, de manière désordonnée et dans des conditions d’hygiène et d’inconfort urbain qui préoccupent sérieusement la Ville depuis le milieu des années 90.
Plusieurs projets d’aménagements visant la résorption de l’habitat insalubre (RHI) se sont succédés sans résultat jusqu’à l’échec de la procédure de Zone d’aménagement concertée (ZAC) en 2003.
Les quartiers Aivi, Vallon et Garnier, sur les hauteurs de Mama’o, accueillent aujourd’hui 511 personnes, 158 cellules familiales et 61 logements dans des conditions indignes qui demeurent inchangées. Le tout dans une zone urbaine qui compte pas loin de 2.000 habitants.
Un lieu populaire où les gens pourraient se retrouver
Le CHPF a été déplacé vers Taaone en octobre 2010, ouvrant la voie à un espoir de concrétisation du projet de RHI. « En 2010, nous avons fait au Pays une proposition de réutilisation de l’espace occupé par l’ancien centre hospitalier », note Emmanuelle Thénot, urbaniste à la ville de Papeete, dossier de synthèse du projet en main, avant d'en décrire les grandes orientations, « L’idée était que l’on puisse, sur le foncier du Pays (emprise foncière de l'ancien hôpital, ndlr), bâtir en façade une première frange urbaine plutôt commerciale, avec des immeubles assez hauts, avec des activités de bureau. Derrière on peut imaginer des activités administratives, et puis on tenait à ce qu’il y ait un grand espace de loisir qui soit implanté dans le quartier. L’EAD (Etablissement public d'aménagement et de développement, ndlr) réfléchissait de son côté sur des programmations et on se rejoignait là-dessus. (…) Nous sommes en pleine ville : il y a un enjeu capital pour Papeete. Cette friche urbaine a vraiment un gros potentiel. En matière de programmation, une frange à vocation sanitaire, avec l’école d’infirmière -- et pourquoi pas insister sur cette vocation ? --, une offre d’habitat intermédiaire, une frange mixte de commerces et bureaux en bordure d’avenue Clémenceau ; et sur le fond une zone de sports, de loisirs et d’espaces verts qui réaliserait un lien urbain entre les quartiers hauts et les quartiers bas. L’idée également de pouvoir pénétrer dans ce quartier de façon agréable avec une grande promenade plantée d’espaces verts jusqu’à l’ancienne école Tamatini, qui deviendrait alors un pôle d’équipement de quartier. (...) Ce que l’on souhaiterait, c’est créer à Mama’o un grand lieu populaire où les gens pourraient se retrouver. »
Un projet d’aménagement de quartier qui, s’il se réalise, serait une première en Polynésie, où les outils réglementaires manquent singulièrement, à commencer par celui permettant le relogement social d'office des personnes déplacées au cours d’une opération de RHI. A Mama’o il y en aurait au bas mot un demi millier.




























